
planung
cubus plan gmbh
leistung
LPH 1 – 4
2023
auftraggebende
Stadt Penkun
ort
Schlossgelände Penkun
projektteam
Itziar León
vom speicher zum gemeinschaftlichen treffpunkt
Das Ensemble der Schlossanlage Penkun wird durch einen Regionalladen mit Bühne als sozialer und kultureller Begegnungsort wiederbelebt und weiterentwickelt.
Die denkmalgeschützte Schlossanlage Penkun bildet als identitätsstiftendes Wahrzeichen den kulturellen und städtebaulichen Mittelpunkt der Stadt. Mit ihrem historischen und ästhetischen Wert wirkt sie als Magnet für Anwohner:innen und Besuchende gleichermaßen. Das Ensemble ermöglicht eine Vielzahl miteinander verknüpfter Nutzungen und bietet großes Potenzial für eine nachhaltige Belebung.
zentraler treffpunkt
Der Schlossvorplatz dient sowohl der lokalen Bevölkerung als auch Tourist:innen und insbesondere Radwandernden als zentraler Treffpunkt. Durch die direkte Lage am Fernradweg Oder–Neiße sowie an den Routen Ueckermünde und Stettin–Gramzow ist die Schlossanlage hervorragend in das regionale Wegenetz eingebunden.
Im Eingangsbereich des Schlosshofs befindet sich der historische Speicher, der im Rahmen des Projekts zu einem Regionalladen mit Aufenthaltsfunktion umgenutzt werden soll. Ergänzt wird das Nutzungskonzept durch eine neue Kulturbühne im südlichen Hofbereich, die Raum für wechselnde kulturelle Veranstaltungen bietet und das Ensemble zusätzlich belebt.
überregional vernetzt
Ziel des Projekts ist die Stärkung der ländlichen Nahversorgung und die Weiterentwicklung der Schlossanlage als sozialer und kultureller Begegnungsort. Der Regionalladen bietet lokale und nachhaltige Produkte, fördert die örtliche Wertschöpfung und verbessert die Nahversorgung. Gleichzeitig dient er als Treffpunkt und Aufenthaltsort. Für Radwandernde wird ein Rastplatz mit Sitzmöglichkeiten und Fahrradstellplätzen geschaffen. Die Bühne erweitert das Angebot um kulturelle Nutzungen und spricht ein überregionales Publikum an.
behutsam und denkmalgerecht
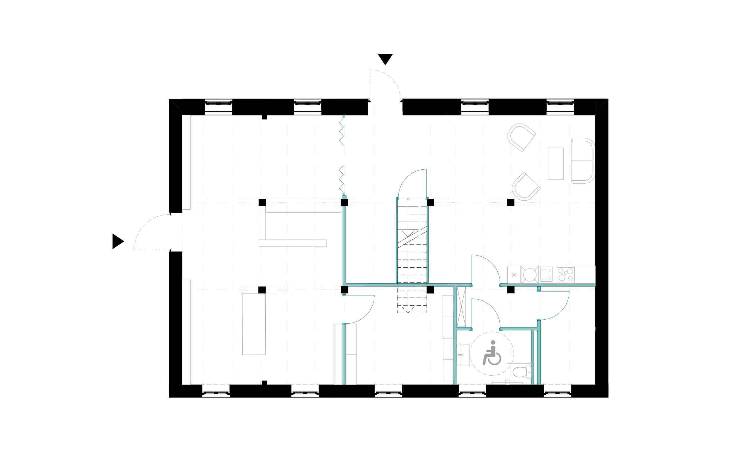
Die Umnutzung erfolgt unter besonderer Berücksichtigung des Denkmalschutzes. Die historische Bausubstanz wird erhalten und durch reversible Maßnahmen ergänzt. Neue Trockenbauwände werden zur Anpassung an zukünftige Nutzungen eingebracht und dabei so ausgeführt, dass sie reversibel sind und den Bestand nicht beeinträchtigen. Die bestehende Holztreppe bleibt weitgehend erhalten, ebenso wird bewusst auf Dämmmaßnahmen verzichtet, um den ursprünglichen Charakter zu bewahren. Der Innenraum erhält einen schlichten Sichtestrichboden.
Im Gebäude entstehen neben dem Verkaufsraum ein Aufenthaltsbereich, eine Teeküche, ein barrierefreies WC sowie Lagerflächen. Ein Informations-Tableau im Eingangsbereich vermittelt die historische Bedeutung der Anlage. Das Projekt verbindet den Erhalt eines bedeutenden Baudenkmals mit einer zeitgemäßen Nutzung und leistet einen wichtigen Beitrag zur Belebung der Stadt Penkun.





pläne













