
planung
cubus plan gmbh
leistung
LPH 1-4, Partizipation. Neubau in Holzbauweise.
240 qm BGF.
2018 – 2021
auftraggebende
Montessori Stiftung Berlin
ort
Hennickendorfer Chaussee 2, 15344 Strausberg
fachplanung
Sähring & Luci Ingenieurgesellschaft mbH (Brandschutz), Niehues Winkler Ingenieure GmbH (Statik)
bauausführung
Cubus Projekt GmbH und Mitglieder der Jugendschule
projektteam
Anna Ohlrogge & Mitglieder der Jugendschule
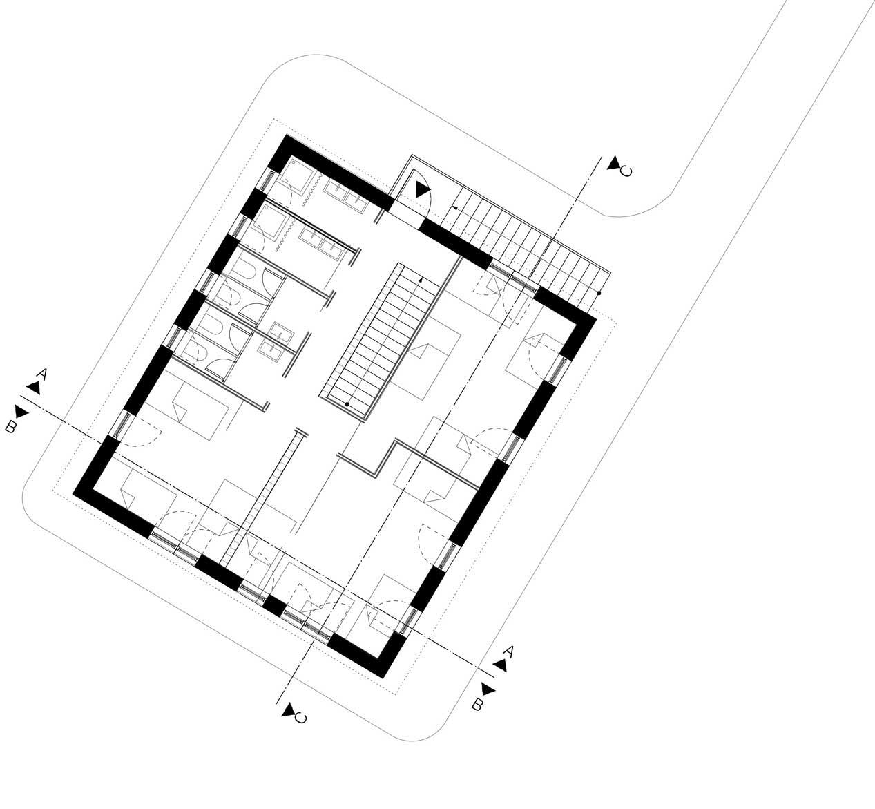
multifunktionales selbstbauhaus
Es hat Farbe und Namen bekommen: Das Blaue Haus. Die Beteiligung der Montessori-Schüler:innen und -Pädagog:innen war essenzieller Bestandteil im gesamten Planungs- und Bauprozess.
Auf dem mehr als 2 Hektar großen Gelände des Studien- und Arbeitszentrums (SAZ) Strausberg können die Schüler:innen der Montessori Oberschule Strausberg (MOS) temporär wohnen und praxisnahe Projekte betreuen. Viele Jahre fungierte das Gebäude zuvor als multifunktionaler, außerschulischer Lernort des Montessori Campus Berlin-Köpenick. Mit dem Neubau der Oberschule Strausberg ist das Blaue Haus nun fest in das SAZ integriert und dient als Unterkunfts- und Gemeinschaftsgebäude für das Residenzprogramm.
in beziehung setzen
In architektonischen Workshops entwickelten die Schüler:innen erste Konzepte für die Gestaltung des Grundstücks. Sie setzten ihre Nutzungswünsche räumlich in Beziehung, ordneten Funktionen an und definierten Orte und Bereiche, die sinnvoll zusammenwirken.
Im Unterricht entstanden zudem erste Ideen und Grundrisse für das Blaue Haus. Auf Basis dieser Planungen entwarf die Architektin ein zweigeschossiges Unterkunftsgebäude, das die Kriterien Wirtschaftlichkeit, Funktionalität und Realisierbarkeit als Selbstbauhaus erfüllt.
eigenregie
Das Gebäude ist in Holzbauweise mit ökologischen und nachhaltigen Materialien errichtet. Der Innenausbau erfolgte in Eigenregie der Schüler:innen der Oberschule – vom Trockenbau bis zum Fliesen der Bäder griffen sie selbst zu Werkzeug und Materialien.
Als erstes neu gebautes Gebäude des SAZ trägt es den liebevollen Namen „Das Blaue Haus“.





pläne










die süddeutsche berichtet
Die Montessori Oberschule Strausberg erhielt besonders in Zeiten von Corona erhöhte Aufmerksamkeit: In einem Artikel der Süddeutschen Zeitung wurde der Ort als eine „Oase in der Pandemie“ bezeichnet. Auch das Blaue Haus findet Erwähnung. Zum Artikel geht es hier:





