
planung
cubus plan gmbh
leistung
LPH 1-4, Bestandssanierung einer Gewerbeimmobilie, BGF ca. 1000 qm
03 – 12/2024
auftraggebende
ICE GbR
ort
Pasewalk
fachplanung
Sähring & Luci GmbH (Brandschutz)
bauausführung
WERK2
projektteam
Eva Horn, Maja Kastaun
bestand sozial revitalisieren
Eine ehemalige Gewerbeimmobilie erhält nach langem Leerstand neues Leben. Kinder mit körperlichen und geistigen Einschränkungen sowie benachteiligte Familien finden in einem gemeinschaftlichen Wohnkonzept ein neues Zuhause.
Der Träger EJF, das Evangelische Jugend- und Fürsorgewerk, suchte und fand in dem zweigeschossigen Gebäude einen neuen Standort, welcher sich gleich für zwei soziale Projekte anbot. Neben Kindern mit Einschränkungen finden hier auch benachteiligte Mütter oder Väter mit Kindern ein neues Zuhause.
sozial gemeinschaftlich leben
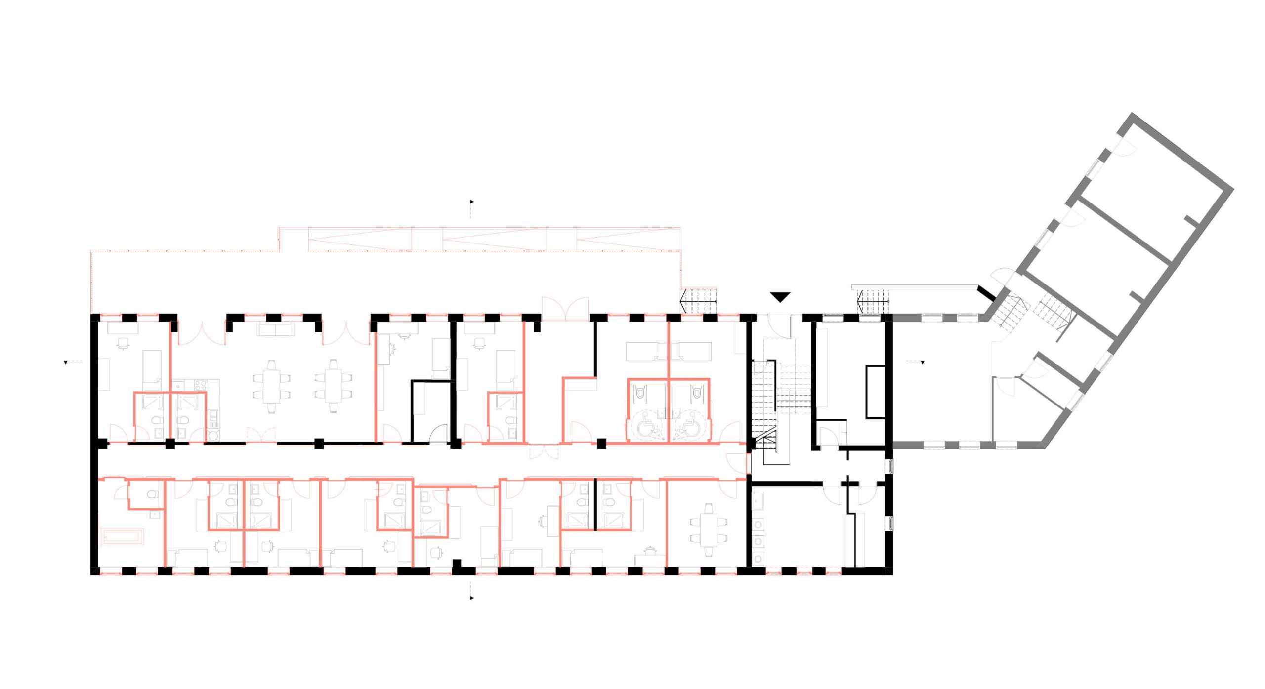
Im Erdgeschoss des Gebäudes entstanden neue Räume für Kinder und ihre Betreuer:innen. Geschickt wurde hier mit dem Bestand umgegangen und so transformierte sich die ehemalige Laderampe in eine Terrasse, aus Lagerräumen wurden neue Gemeinschaftsflächen und aus Büroräumen Bewohner:innenzimmer. Im Innenraum sorgen Holz, schöne Wandfarben und eine individuelle Innenausstattung für das Wohlbefinden der Kinder.
Im Obergeschoss finden kleine Familien ihren Platz. Auch hier entstanden, angepasst an den Bestand, kleine abgeschlossene Wohneinheiten für Eltern und Kind. Die Räume orientieren sich um einen gemeinschaftlichen Flurbereich mit Therapiezimmern oder Gemeinschaftsküchen. Hier können sich die Bewohner:innen treffen und gegenseitig Halt geben.
null barriere
Vom Außenraum bis zu den Zimmern der Bewohnenden wurden möglichst viele Barrieren des Gebäudes beseitigt. Die ehemalige Laderampe, die nun als Terrasse dient, erhält eine Erschließung für Rollstuhlfahrer:innen sowie einen separaten, barrierefreien Eingang in das Gebäude. Im Erdgeschoss befinden sich angrenzend zwei Zimmer für Kinder im Rollstuhl mit entsprechend bedarfsgerechten Bädern. Zudem gibt es Haltegriffe und eine Pflegebadewanne, die die Bewohner:innen im täglichen Leben unterstützen.




pläne, ansichten, grundrisse, schnitte
vorher – nachher
















